Bureau d’études techniques pluridisciplinaire
Expertise
structure – fluides – électricité – AMO – diagnostics
Vous recherchez un partenaire capable de piloter, analyser, diagnostiquer et optimiser vos projets ?
ECTO BAT, bureau d’études pluridisciplinaire, met à votre disposition son expertise en structure, CVC, CFO-CFA, plomberie et assistance à maîtrise d’ouvrage.
Nous intervenons en France métropolitaine, dans les DOM et en Afrique pour garantir la réussite technique et réglementaire de vos opérations.
Nos domaines d’expertise
Notre équipe couvre tous les lots techniques, du gros œuvre aux fluides, en intégrant outils numériques et accompagnement stratégique.
Ingénierie du bâtiment
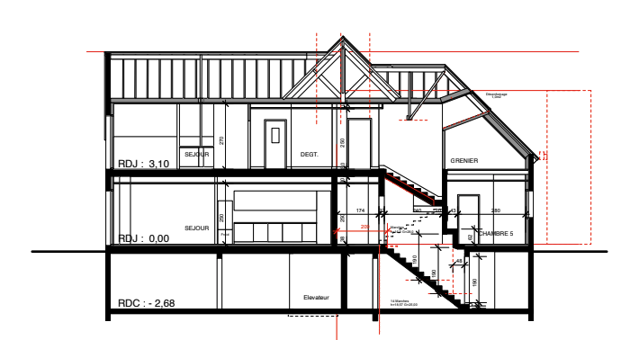
Études et plans : structure, CVC/plomberie, électricité CFO/CFA/SSI et VRD. Calculs, schémas, dossiers d’exécution, etc.
Méthodologie
& BIM
Une ingénierie numérique appuyée sur des méthodes rigoureuses et le BIM pour garantir traçabilité, fiabilité et coordination inter-lots.
Conseil & accompagnement
Accompagnement global : assistance à maîtrise d’ouvrage, marchés publics, diagnostics, conformité et stratégie de maintenance.
Des projets livrés dans les règles de l’art
Du logement social en Guadeloupe à des bureaux à Paris, en passant par des équipements publics au Burkina Faso, nos ingénieurs accompagnent des projets variés, durables et conformes.
Notre équipe, notre vision, notre engagement
Avec une organisation agile et des outils numériques avancés, ECTO-Bât garantit un haut niveau d’expérience technique, une gestion fluide des projets et une proximité avec ses clients et partenaires.
Actualités & veilles techniques
CVC et ventilation performante :
un investissement rentable dès la conception
L’importance des études thermiques et aérauliques pour éviter les surconsommations.
Comparaison RE2020 / RTAA DOM sur la ventilation naturelle et mécanique.
Focus sur les gains mesurables : confort + économies + labels environnementaux.
Courants forts et faibles :
comment sécuriser vos installations ERP et tertiaires
Les obligations réglementaires et normes NFC 15-100, APSAD, SSI.
Les risques liés à l’obsolescence des réseaux CFO/CFA.
L’apport d’un BET pour auditer, schématiser et planifier les mises en conformité.
Réhabiliter l’habitat indigne : diagnostics techniques et leviers d’action
Définir juridiquement l’habitat indigne et ses typologies (insalubrité, péril…).
Expliquer le rôle du bureau d’études dans le diagnostic initial (structure, réseaux, ventilation…).
Présenter les dispositifs publics (Anah, PIG, plans départementaux) et l’assistance à maîtrise d’ouvrage.
Besoin d’un devis ou d’un accompagnement personnalisé ?
Notre équipe vous répond sous 48 h.







